Architektura

THÉÂTRE POPULAIRE

Valerie Wernerová
FAST VUT - Faculty of Civil Engineering, Brno University of Technology, Department of Architecture
Česká Republika

Idea projektu

The aim of the project was to create a suitable background for the functioning of the company C.D.C. La Termitière, an environment for visitors but also for actors, artists and possible foreign visits. The design should be light on the materials used, most should be available locally. At the same time, the whole project should support the local traditional methods of construction, both the materials and methods used and the appearance of the individual buildinvgs. Each of the buildings is unique in its own way - their colours, materials and construction work together. They function individually but at the same time function together. It is therefore possible to have only a LABO or WORK zone in operation. However, if the entire complex is in operation, the individual operations don’t obstruct each other, on the contrary, they support each other.
Main existing buildings are preserved for economic and environmental reasons and are incorporated into the concept.
So the effort of this project is to propose realizable, functional but also beautiful and engaging environment for future artist and visitors of the amphitheatre in the capital of Burkina Faso, Ougadougou.

Popis projektu

PURPOSE AND MEANING

The aim of the project is to brighten the background around the old abandoned amphitheatre from 1984, located in Central West Africa. Currently, the area that belongs to the amphitheatre, is used only partially. The C.D.C. La Termitière organization works here. This organization is also the sponsor of the design and their goal is to start using the old amphitheatre again. Make it a cultural centre, a meeting place, a space for theatrical music and dance performances. They put a great emphasis on sustainability and the use of local resources. The project should be an inspiration for future generations and an impetus for contemporary Burkina architecture.

URBANISTIC CONCEPT

The site is located in West Africa in the state of Ougadougou in the capital of Burkina Faso. It lies near the city centre 3.5 km, 40 minutes by walking, ten by car. The property has an area of 23,000 sq ft.
In the immediate area it is surrounded a mostly free unbuilt area. To the north lies a sports ground and a motorcycle shop. To the west, a small tributary of the Mogho Naaba canal wraps around the border, and here it is adjacent to a smaller waste dump and a small garden colony. From the south and east it is surrounded by a residential development separated by a green empty strip.
The quiet surroundings allow the building to function unimpeded by the immediate noise of the city. The local residential buildings that lie nearby are tiny, inflated together. They are spread in a semi-regular rectangular raster. So these are not slums, we find ourselves near the centre of nearly three million cities. In relative proximity to the east lies the only international airport. To the northeast lies the historic centre. Including the King's residence.
There is no asphalt road directly to the property. Access is by unpaved roads, which are usually outside the main routes. The compound can be reached from the north or the south, and all along the west side lies the road at the border. As part of the design, a main entrance from the southwest for visitors and a supply entrance in the north were created. In addition, there is a small staff entrance to the south. Parking is provided outside the property a short distance from the main entrance. An old amphitheatre called the „Théâtre Populaire Désiré BONOGO“ occupies the northern part of the compound. Oriented by the auditorium to the north. The capacity has 2,500 seats, but the stage is not the required size, so today's adjacent facilities will have to be demolished and the stage enlarged. The property now operates a company called " The C.D.C. La Termitière " dedicated to cultural activities, mainly dance and theatre. It also organises many events. It uses existing buildings in the south of the property, a thatched pavilion, an accommodation block, a canteen, a gallery space, an office block for administration, a vast courtyard, gardens and a studio Grand. The project has preserved the most important objects, the straw pavilion and the Grand Studio. Also, all the trees in the compound have been preserved (with two exceptions).

ARCHITEKTONIC SOLUTION
The aim of the extension was to support the amphitheatre and allow it to function appropriately. The built objects must therefore interact with the existing amphitheatre and also with two preserved buildings. The open-air straw pavilion was left unchanged, on the contrary it was an inspiration for the shape and roofing of other buildings. Studio Grand has been slightly modified. Its mass represents a large orange prism complete with three tall light arches lining the windows on the north and south sides. The cover is low-grade saddle with tin covering. The object is, probably due to roofing, large areas and inadequate ventilation, overheating. It would therefore be advisable to change the roof covering to a different non-accumulating heat, remove the upper horizontal windows under aesthetic action and ensure adequate ventilation. This could be ensured by knocking out large arches to open the space across. Transverse ventilation should also be provided in the roof area. The openings need to be shaded free of light by, for example, using dark curtains, which can be included if necessary and provide the necessary darkness. Smaller volumes of archive and storage were proposed for the Grand studio. The building itself forms an antidote to the mass of the amphitheatre, with a scenic box acting out. In the section, the two objects look almost identical. The prisms completed with a smaller volume facing each other across the slope of the auditorium. The Thatched pavilion was the inspiration for the new teaching pavilions in the LABO zone. Their roof is likewise, thatched and is the same shape. You can tell that they also form antidotes to each other.
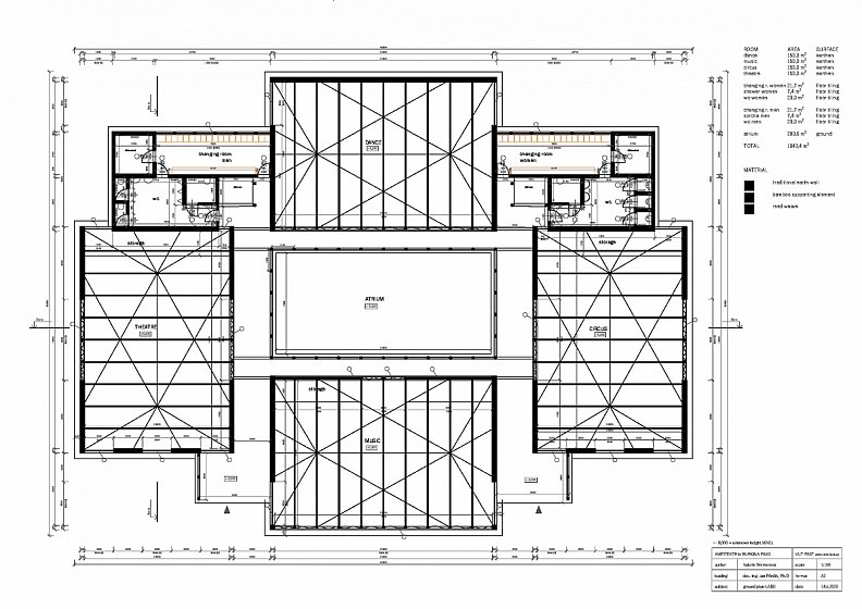
At the centre of the entire composition stands a new smaller Forest Amphitheatre. It forms a centre and connects all the other parts. Following the example of the old Roman and Greek amphitheatres, it has an oval stage and surrounds a rising auditorium. It is surrounded by two arched buildings connected under one roof. It belongs to the SHOW zone, but can be used by all, for example as a classroom for LABO or as a small square at festival time. It can be used versatilely for teaching, exhibitions, musical and theatre performances, as a social space, "square" or just as a place to sit, meet others or rest. It is partly hidden among the surrounding trees, hence the attribute "Forest."
The last part of WORK belongs to the amphitheatre. Because it is not intended for the public and, on the contrary, the privacy of employees, workers and visitors is desirable, it is separated by dividing walls. Otherwise the area is open and only the most important roads are paved. The WORK Zone forms wings to a stage with a scenic box. Together they demarcate the scene and form a frame, an enclosed space.
Although each building is form-different. They all have common elements. Every part has a centre. LABO has an atrium. WORK auditorium and stage. SHOW forest amphitheatre. A central space is created in front of the Grand studio. They also correspond materially with each other. Only the scenic box is colour-different from the rest, separating it from the surrounding space, drawing attention to the stage, while reducing the light colour to its large volume. As a bonus, it can be used as a big screen for screening. Although the buildings are freestanding and have their own separate operations, the aim was to combine them together into one pleasant functioning unit.

ARRANGEMENT
Visitors enter from the south-west into the entrance area, a quiet space, the garden-courtyard, where a circle of small trees is already planted and surrounded by large trees already grown. Inside the grounds, they must pass through the "gateway" of the Thatched Pavilion. Here is the "gatehouse" and ticket sales, information and seating. The space is also designed to house tables for table tennis, which is said to be very popular among members of the organisation. The space is completely open to the surrounding area, the barrier consists only of strings entwined between the posts, and they just determine the flow of people through the pavilion.

According to the purpose of the visit, people go to the LABO zone, on the shaded road to the right. Or head to the Amphitheatre. After or before the show, they can stay in the café at the Forest Amphitheatre and see the current exhibition. At the same time, the café serves as an auditorium for smaller musical or theatrical performances. Toiletries are in each of the main buildings. For a large amphitheatre and occasional festivals, the toilets are built into the slope of the amphitheatre.
The LABO zone has two parts. New and old. The old one is represented by the Grand Studio. Some functions are left to it, it can be used as a multimedia hall, it is also suitable for screening. At the same time, a recording studio and a photo studio were incorporated into his space. Their volumes were retracted to the back of the room together with the dressing rooms and toilets. Above them is space on a raised level to watch the action in the hall, or to use the area for calmer types of exercises and activities. An archive and general storage unit were built for the photo and recording studio. It thus shields the building from the south side, providing it with the necessary storage facilities.
The new part of LABO is four teaching pavilions connected by a common atrium. Individual walls can be closed or opened as necessary by sliding cloth and or by agreement by sliding mats. Dancers, actors, circus performers and musicians can thus work together as needed or operate separately. Every space, except dance, has a small sealable storage space in the classroom. The positioning of the fillings of each pavilion is not random. The music was placed in the lead because at the time of the festivals the space will be open and used as a stage for small concerts. The theatre is oriented as close to the amphitheatre as possible. The dance classroom can be completely opened to the atrium, enhancing its space. A circus pavilion with many props is laid closest to the additional warehouse behind the Grand studio. The whole space has its own sanitary facilities and changing rooms for both men and women.
The filling of the SHOW zone is primarily to serve visitors to the amphitheatre, but also students from the LABO zone or even staff. Therefore, the main object, the small Forest Amphitheatre, is placed center stage. The stage is surrounded by a café and exhibition modular space serving as a casual auditorium. But primarily they're bleachers stairs designed to observe things. The building is almost all sides passable, open. In the exhibition section, it is still possible to close the spaces with the pieces on display. Above all, the place is intended to be used for rest and relaxation with a book, with food, with drink or music.

The WORK zone is divided into three parts. The technical part is as free as possible to allow easy handling of objects and possible alteration of the space. Behind the stage are simple dressing rooms with toilets accessible from the outside. He doesn't walk directly through the changing area but through the small foyer. The community section is more subdivided, with its own sanitary facilities, meeting room with kitchenette, small office and sewing workshop. This was located here, as it is less of a technical domain for women. At the same time, it is conveniently placed right by the stage. Guest accommodation is smaller cells for two people with a bedroom and bathroom. The capacity is 12 people.

Technické informace

CONSTRUCTIONAL AND MATERIAL SOLUTION
The main materials are clay, unburned brick, bamboo and a bit of steel and reinforced concrete for the stage and scenic box. One of the intentions of the whole project is to use local resources. The traditional material for construction has always been dirt in this area. Since it is almost everywhere, there is no need to import it from far away. Therefore, it appears to be suitable material. There are several types of traditional constructions, dirt can be processed into unburned bricks or a monolithic wall can be created. Most new objects therefore have a proposed earth wall, processing varies according to shape and design requirements. Classic roofs of indigenous dwellings are divided into two types, light and heavy. Lightweights are cobbled together from thatches, heavy ones require skeleton construction and are made of earth. Both types were also used using bamboo as a carrier structure in the design. Bamboo was chosen because it is a natural material with good properties. Wood is a not-so-cheap material in the area. But bamboo is a fast-growing grass that can be grown in southern areas of the country and, according to available resources, is used for construction in neighbouring southern states. Earth walls and roofs should help with cooling and to maintain agreeable stable temperature.

FUNDAMENTAL MEASUREMENT
Plot area 2,33 ha
Super built-up area 5 227 m2
Net area 4 727 m2
Living area (accommodation) 115,2 m2
Enclosed area 20 494 m3
Approximate cost (1200 XOF/m3) 24 600 000 XOF = 37 500 € =100 00 000 Kč

Dokumentace

Show PDF 1Show PDF 2

Copyright © 2025 INSPIRELI | All rights reserved. Use of this website signifies your agreement to the Terms of Use, Privacy Policy, and use of cookies.